My clients, who sadly lost their home in the January bush fires, have decided to follow a different approach to re-built their house.
Stage 1 is to transform their large shed into a temporary home were they can live comfortably for the meantime until they are mentally and physically ready to re-built their forever home.
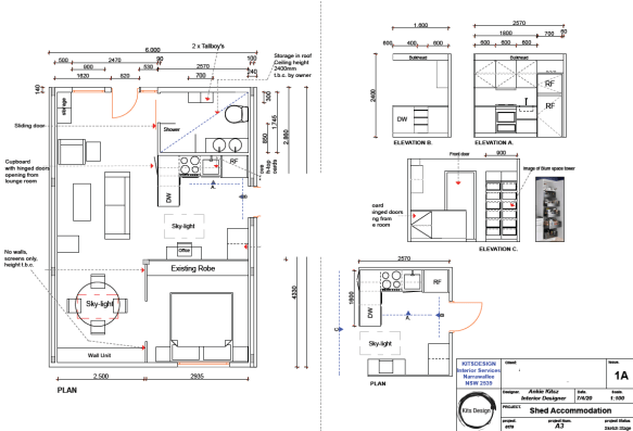
The shed will be later used as holiday accommodation; the scope of work is to design a compact home but with all the necessary features. A holiday getaway with a touch of industrial-loft feel to it.
I presented a few concept ideas to help them to visualise what lay-out can be suitable for the shed.
By introducing a few skylights the space appears larger and let the daylight in.

After a few concept design sketches, we now established the lay-out and the bathroom and kitchen are in one corner to minimise cost on plumbing and drainage.
The entree is through the kitchen and another backdoor near the bathroom. Because of the pitch roof we decided not to have full height walls, except the bathroom has a 2400mm ceiling and walls.
The wardrobe wall is 2000mm to create a better airflow in the bedroom and living space.
FLOORPLAN

Building works in progress