In January 2020 the BUSHfires went through Conjola Park, situated on the NSW south coast, and sadly destroyed more then 90 homes. My clients lost their holiday property in this ones beautiful part of the world.
Determent to re-connect with the area, they decided to re-built their house WHICH IS SITUATED directly on Lake Conjola, NSW 2539
After lots of consideration and research, the decision was made to design a home WITH A modern Hampton interior with a splash of industrial design elements.
The brief is to create a comfort and stylish holiday house to enjoy with family and friends.
To create a good design it is important to establish a relationships between the spaces and we are working very close together to make this a forever home.
Interior concepts for consideration

The design of the lay-out of the two levels is coming together and the next stage is to confirm materials, floors, tiles and concrete finishes were appropriate.
An important decision is to choose between a polished concrete or timber flooring throughout the living spaces.
Bedrooms have carpet and bathrooms and laundry will be fitted with large tiles (1200x600m) and a exclusive feature panel for all bathrooms.
I proposed to add some fabulous wallpaper mural in the dining and master bedroom give the rooms a special element of design and by adding beautiful lighting this house will be truly exceptional inside out.
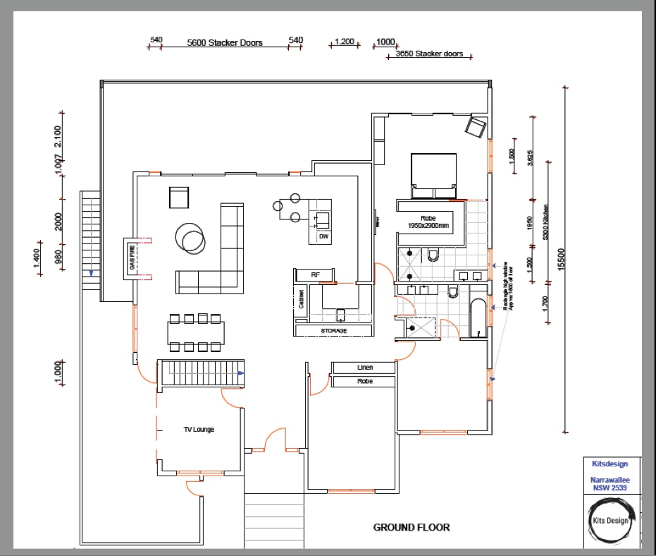
PLAN OF LOWER GROUND FLOOR
PROPOSED BAR / KITCHEN DESIGN FOR THE LOWER GROUND FLOOR


The wallpaper murals wallpaper murals enhance the spaces with a element of design


The design on the lower ground floor has an industrial feel to it and the kitchen / bar and dining finishes are in monument black paint finish, soft grey and a light Scandinavian timber in some area’s to add warmth.

PROPOSED KITCHEN DESIGN on the GROUND FLOOR
The ground floor kitchen has a soft palette with a touch of timber to add contrast. The walk-in pantry has mainly open shelves and a functional work area with a sink and additional draw dishwasher.

PROPOSED LAY-OUT FOR MAIN BEDROOM
The main bedroom is a combination of timber doors, built-in timber shelving on either side of the bed and behind the bed a wallpaper to add an element of design.

Very exciting moment when the footprint of the lay-out is marked out and construction started










WORK IN PROGRESS – Nearly reaching completion
February 2023
The house is near completion and beside minor interior design elements the owners enjoy their holiday home on Lake Conjola to the fullest.


