At the time that my client purchased this amazing property, the 2-storey house was previous renovated but needed some work to transform this home into a space that suited the lifestyle of the new owner.
We carefully looked at the lay-out of the living spaces and came to the conclusion, that by removing some internal walls, we create a design that allows the natural light to come and opens the aspect of the views to Narrawallee Beach front.
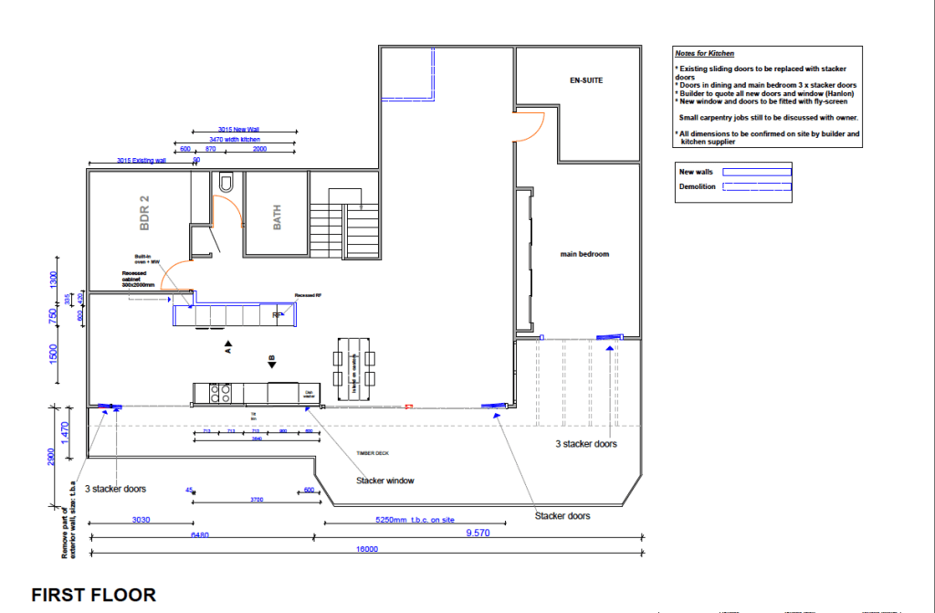
The existing sliding doors and windows, facing the front balcony, have been replaced with large windows and doors to extend the in- and outdoor living spaces.
Additional power-points were installed, new light-fittings throughout and the 3 bathrooms renovated with solid timber vanities and contemporary fittings and fixings. The beautiful black-butt floorboards were sanded back and coated with a clear lacquer to enhance the natural timber grain.
By extending the living space over the total length of the house, a new contemporary kitchen and a fresh paint palette, this property has transformed into a home with a unique innovative design that suits todays lifestyle.
CONSTRUCTION TIME

FLOOR-PLAN PROPOSED RENOVATION

A lot of detail went into the design of the kitchen and the soft grey shade of the cabinetry with dark shadow lines and the wrapped around stone created a beautiful designer kitchen.
We worked closely with our client to select some designer furniture pieces, light fittings and decor that suits a coastal home. A well known cabinetry maker from this area has assisted with the kitchen design and made some very special pieces of furniture to fit the space.














The end result is a magnificent coastal home with a spectacular outlook on the Narrawallee beach
