Balcony extension Narrawallee residential
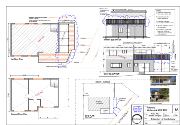
The scope of work was to enlarge the existing deck into a much larger space to entertain family and friends and increase the view to Narrawallee Beachfront.
The proposed design shows a balcony that wraps around the corner and provides sun and shade throughout the year. A new pergola takes care of the hot summer sun.
We decided to angle the corner to take full advantage of the available size and still comply with Australian Standards.
This project is still in design phase.
