My clients purchased last year a 2 story house across from Narrawallee beach and their goal was to create an eco friendly holiday getaway. The property is in need for some T.L.C. to bring it up to todays living standards. The brief was to create a beach heaven to enjoy with family and friends
Stage 1 is to renovate the 1st floor, which is the living area, kitchen, 3 bedrooms, the main bathroom and an en-suite. The current floorpan shows a staircase that lands in the middle of the living space where the kitchen is on one side and the other side the lounge room with no room for a dining table.
To create a dining room, we suggested to relocate the staircase, add large stacker doors to open up the lounge and create a natural flow from the front to the rear of the house.
We constantly collaborated with the clients throughout the process to achieve exactly what they wished for and more.
The end result is stunning with a brand-new kitchen, timber flooring throughout and the large stacker doors creates an easy access to the new improved balcony.
We created a space the family will love for the years to come.
We are working through some final touches to create a perfect relationship between colour and light.

A before shot of the house
The exterior called for a desperate update to bring in to a standard that suits todays living . We working closely with a local builder and transformed this home into a true beach heaven.

AFTER
A fresh paint, new balcony and overall repairs transformed the facade of this house into a true holiday beach house to enjoy for many years to come.
The focus for the next stage was to concentrate on the interior and renovate the kitchen, bathrooms and bedrooms to create a functional space the family can enjoy and escape the busy city live for our beautiful South Coast.
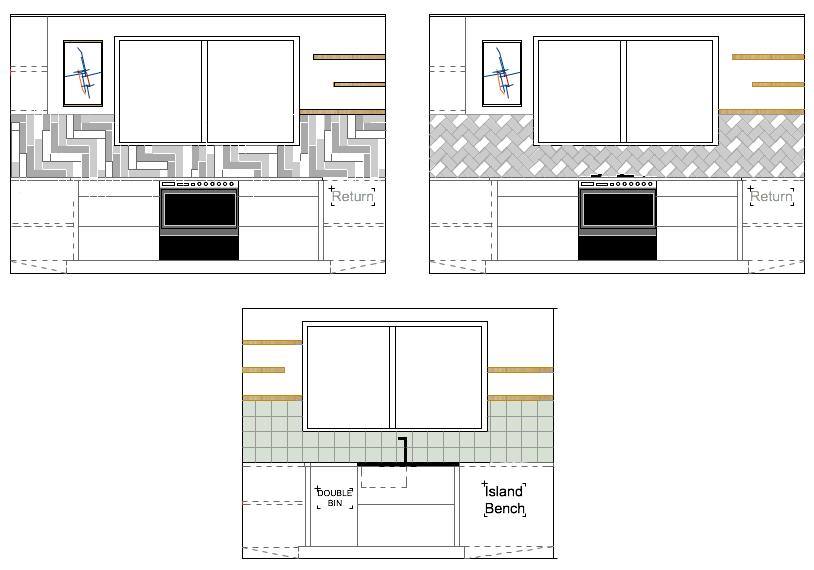
Proposed sketches for an new kitchen lay-out

Existing kitchen lay-out where the staircase takes away a large space of the living area




The clients decided for a white kitchen with a white stone bench-top. To make that work we introduced a splash-back tile that add a flair of design and provide the kitchen with an element of contrast, along with floating timber shelves to compliment the timber flooring.
The new lay-out of the Kitchen

SOME IMAGES OF THE PREVIOUS INTERIOR




We suggested 2 colour palettes that suited the style of the house

The end result is a stunning beachfront holiday house that is inviting and to be enjoyed for many years to come

Concept ideas for the kitchen splash-back tiles
