The clients approached me to assist with certain aspects of this new-build. The first stage of the project was to select the exterior materials to create a contemporary design between colour and light.
After a few sketch drawings and site meetings with the clients, we decided on soft grey paneling with a touch of timber to create a natural relationship to suit the coast environment.
OPTION 1.

OPTION 2, 3 AND 4

INTERIORS
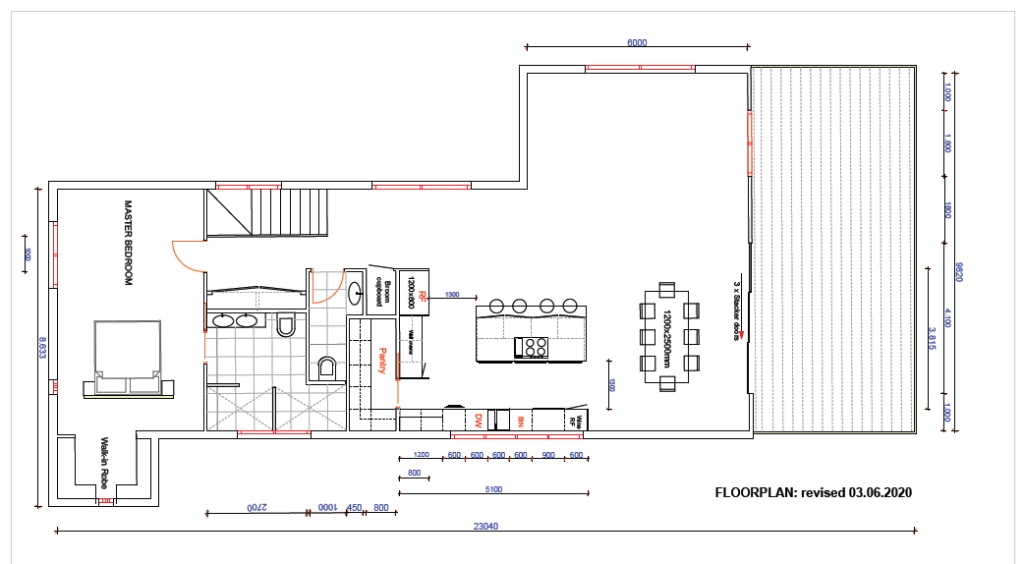
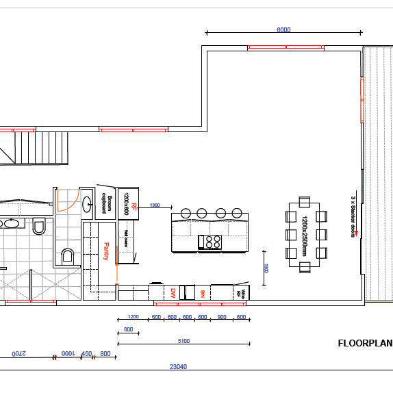
The brief was to design a comfortable interior that suits the lifestyle of various buyers.
Working very closely with the owners and builder, we came up with a design that will attract a wide range of families or couples that are looking for a comfortable house at the South Coast with plenty of space to entertain but still have privacy when need to be.
The kitchen takes up a substantial part of the total area, but it is designed to be the heart of the living space and no overhead cupboards but the walk-in pantry offers sufficient space to store all your everyday kitchen needs.
The finished Product that demonstrate a successful relationship between style, design and comfort.


The elevations show the design of the kitchen lay-out with plenty of daylight coming in from all directions.
We agreed on a large island bench to function as an entertainment hub. A silent range hood has been added to minimise the noise in the kitchen. This space is perfect to enjoy meals and to entertain friends and family.









The colour palette is modern contemporary with whites to cool greys and soft Scandinavian timber finishes.



