My clients purchased their house a couple of years ago and now it’s time to make it their own.
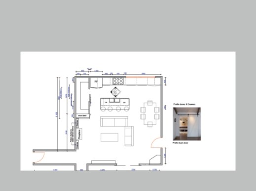
The family living area is open plan living space and desperately needs to be functional to accommodate their family of 5 for now and in the future.
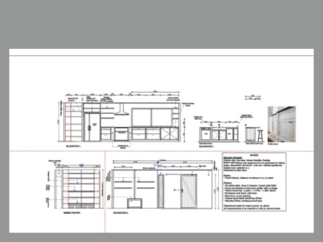
Cath and Michael are both enthusiastic cooks and need a kitchen with a walk-in pantry to provide the storage and easy access to all their cooking attributes.
A large island bench creates the perfect space for family breakfast.
A new floor and a white paint on the walls transformed this somewhat dark space into a light and bright interior.

BEFORE

AFTER



