The owners of this 55 year old property purchase the house early 2022 and needed help to transfer the 2-story home into a holiday heaven.
The original plan was to add a new 2-story independent house to the existing dwelling. This would give the owners the opportunity to holiday rent a complete house and use the original house for their own family and friends to enjoy. After many discussion the owners have decided not to go ahead with the new build until the construction industry has recovered and look at the project in a couple of years time.
The house overlooks Conjola Lake and the lake is at your doorstep.

This project is now divided into stage 1 and 2. The first stage is to renovate the existing 2-story home and make it suitable for holiday rental.
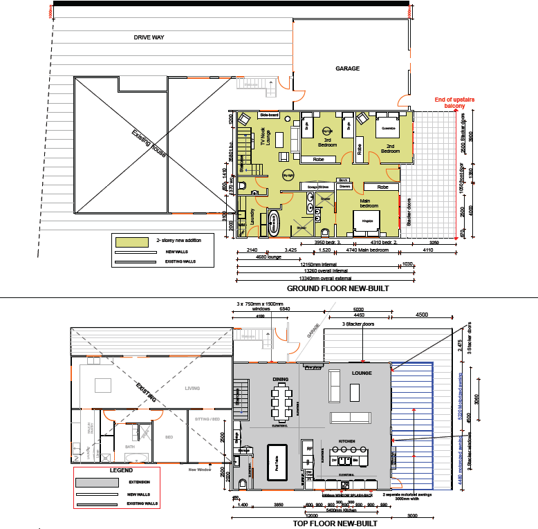
The ground floor needed a total make-over and now has a good size new bathroom, a kitchenette, 2 bedrooms and a tv nook to accommodate a family of 4.
The 2 floors can be rented separately or integrated as 1 large holiday house with 5 bedrooms, 3 bathrooms and 2 kitchens

LATEST STORIES



LOTS OF IDEAS HAVE BEEN DISCUSSED WITH OUT CLIENTS TO CREATE AN EXCLUSIVE HOLIDAY ESCAPE TO ENJOY FOR THEM AND THEIR GUESTS


Interior ideas to create a sophisticated coastal style that compliment the surroundings
In February 2023 the house was completed and the clients are extremely happy with the outcome and the first reviews from guests are very positive.
The furniture, light fittings, wallpaper murals and decor items have been selected by Kitsdesign













Downstairs we created an independent accommodation with 2 bedrooms, bathroom, kitchen and a nook to relax or watch t.v.
Both floor now have colour, texture and design elements to suit the holiday market in this area




